ППР на металлоконструкции, в том числе на монтаж крана – детальная инструкция, используемая в процессе производства монтажных работ в отношении стальных или алюминиевых конструкций. Разрабатывается на основе технического задания заказчика и предоставленной рабочей документации. Имеет взаимосвязь с ППР на монтаж сэндвич-панелей.
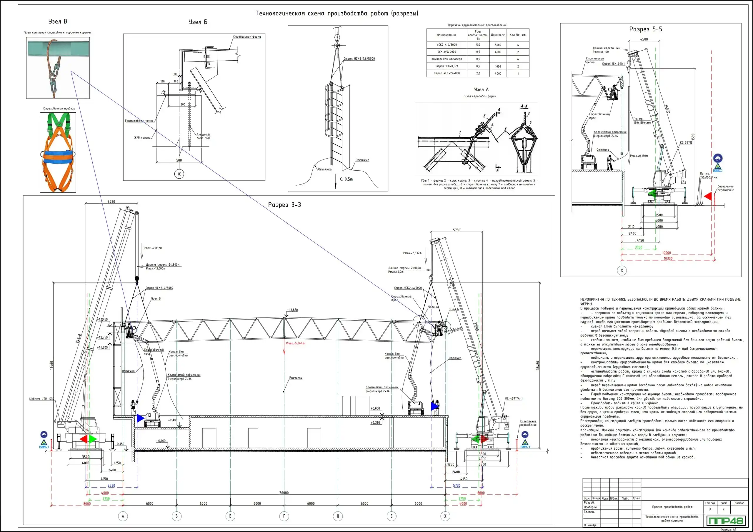
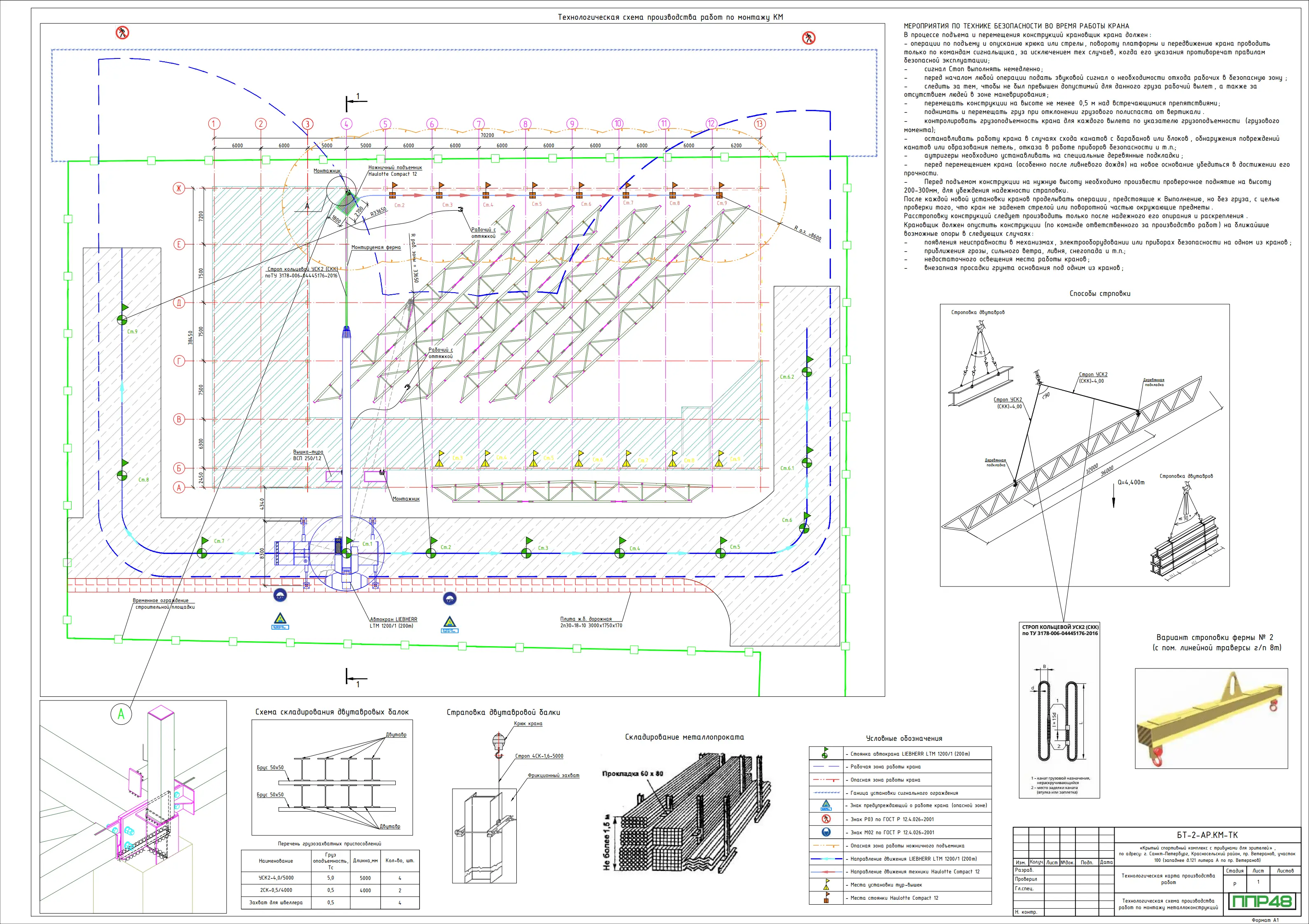
Разработку проекта на монтаж металлоконструкций выполняют с учетом требований СП 16.13330. В документ включают схему последовательности сборки металлического каркаса. Каркас разбивают на отдельные элементы, которые затем нумеруют. После чего определяют порядок сборки. Закончив укрупнительную сборку элементов КМ, строители приступают непосредственно к их монтажу. Секции КМ поднимают и перемещают с помощью крана к местам проектной установки. Затем монтажники выверяют конструкции, центрируют оси фасонок и закладных деталей, устраивают монтажные соединения. Данный документ должен приносить практическую пользу, помогать сотрудникам принимать решения, которые позволят оптимизировать строительные процессы и сэкономить денежные средства подрядной организации. Подготовительные мероприятия, основные производственные процессы, контроль качества и надзор за строительством ведутся с учетом требований СП 48.13330.
Область применения

Проект производства работ на монтаж металлоконструкций - весьма важный документ в строительстве.
Разрабатывается для установления технологической последовательности монтажа таких конструктивных элементов как:
Для чего нужен ППР на металлоконструкции?
Проект производства работ на монтаж металлоконструкций должен быть выполнен в обязательном порядке перед началом ремонта, строительства или реконструкции сооружений, изготовленных целиком или частично из металлических изделий всевозможных видов профиля или сортаментного проката (ригели, связи, балки, фермы, прогоны и т.д.). Документ необходим для организации процесса строительства, осуществления контроля качества, обеспечения производственной безопасности. Специалисты нашей команды способны взять на себя проектирование любой сложности. Разработка ППР реализуется опытными инженерами, аттестованными в области промышленной безопасности. У наших специалистов имеются все необходимые удостоверения и сертификаты на право изготовления документации.
ВАЖНО
Осуществлять СМР без данного документа строго запрещено. Предусмотрено административное наказание.
Особенности 
Для изготовления документа необходимы следующие данные:
- техническое задание, выдающееся подрядчиком, на выпуск документации, обеспечивающей технологическое сопровождение возводимого или реконструируемого объекта;
- исходные чертежи КМ или КМД (также можно заказать у нас);
- директивные сроки выполнения комплекса СМР
- информация о применяемых материалах, конструкциях, строительной механизированной технике, рабочей силе;
- проект организации строительства.
Чем полезен данный документ?
Позволяет оптимизировать сроки и трудозатраты при возведении объектов из металлоконструкций. При правильном подборе организационно-технологических решений, можно определить наиболее выгодные условия, по которым будет производиться поставка материалов к строительному участку и осуществляться сам монтаж.
Документ включает:
- этапы работ и взаимодействия грузоподъёмных механизмов, которые планируется задействовать в монтажных операциях;
- места расположения и направления перемещения техники на площадке;
- анализ, прогнозирование и устранение возможных рисков при проведении СМР;
- перечень требуемых ресурсов и оборудования при осуществлении строительного производства с применением грузоподъёмных машин.

















































