ППР48

ППР на устройство котлована

От 3х дней. От 35 тысяч рублей. Бесплатное устранение замечаний. 100% гарантия согласования.

 Что необходимо включить в ППР на устройство котлована?

Мы разрабатываем организационно-технологическую документацию на основе законодательства и правил строительства. В каждом отдельном случае учитываются особенности земляного сооружения. Перед началом всех работ необходимо выполнить геодезическую разбивку, что должно быть отображено в разделе ППР о подготовительных работах.

Ограждение котлована

проект производства работ (ППР) на устройство грунтовой выемки

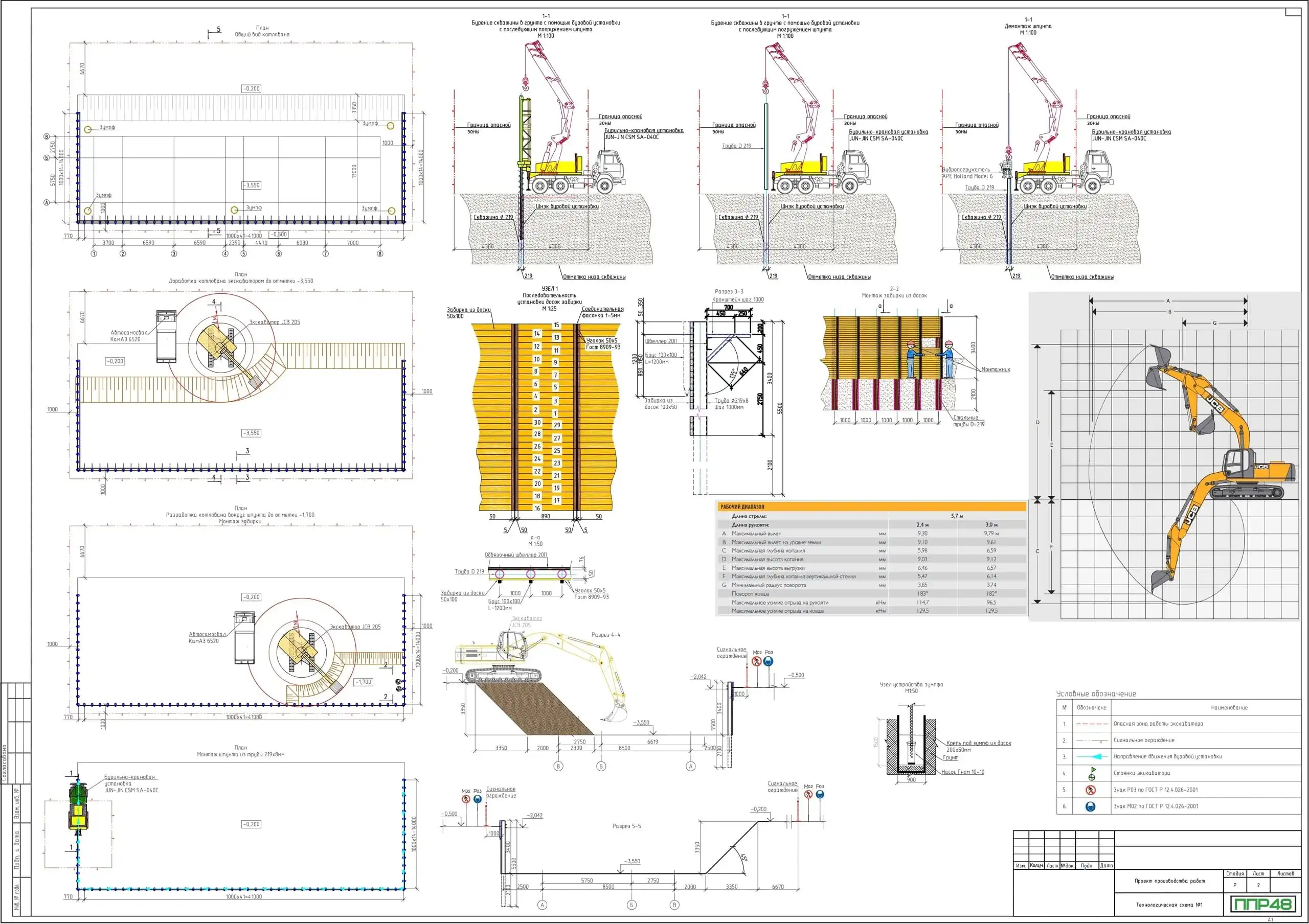
В стесненных условиях или при большой глубине заложения фундамента возникает необходимость в ограждении котлована. В большинстве случаев для этого используются шпунты Ларсена или трубы. Шпунт Ларсена погружают с помощью специального навесного оборудования, устанавливаемого на стрелу крана или экскаватора. Для устройства шпунта из стальных труб или железобетонных буронабивных свай используют специальные буровые установки. Этап закрепления откосов выемки - важный раздел в составе документа, требующий детальной проработки. 

Разработка грунта

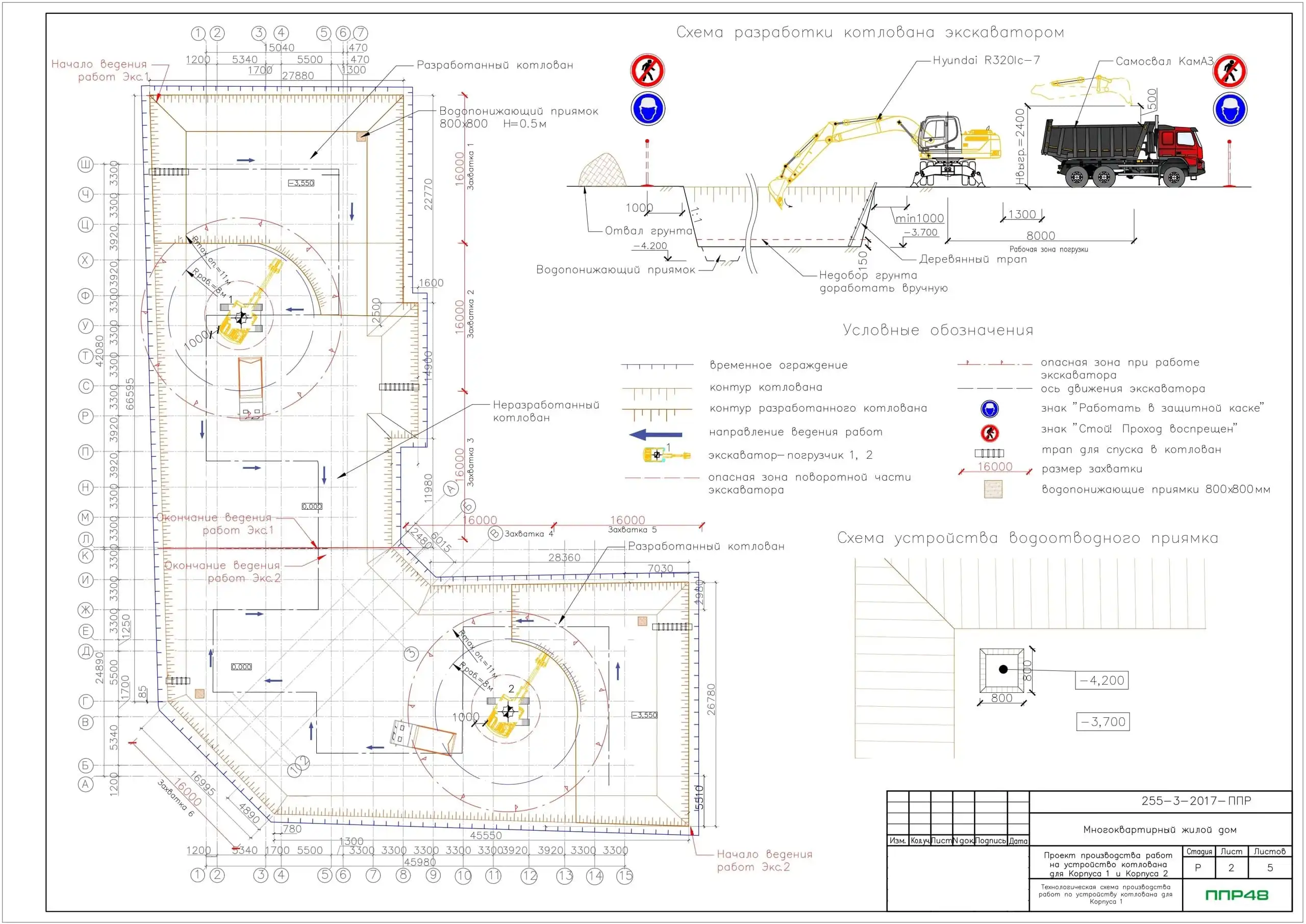
В проекте обязательно должна быть информация обо всех видах механизмов, задействованных при рытье выемки. Каждую машину следует подбирает с учетом уровня грунтовых вод и типов вынимаемых грунтов. ППР на разработку выемки экскаватором обеспечивает выбор наиболее подходящих по всем параметрам моделей техники. Например, использование: 

  • экскаватора-драглайна уместно при глубине копки более 12 метров и возможности размаха стрелы на длину 10 метров;
  • экскаватора-грейфера – при большой глубине копания, превышающей показатель уровня грунтовых вод или в крайне стесненных условиях;
  • экскаваторов с обратной лопатой (маневренной спецтехники) – при небольшой глубине рытья. 

Обратная засыпка

Обратная засыпка котлована выполняется сразу после его разработки для устройства подстилающих слоев основания фундаментов. Второй раз обратную засыпку пазух выполняют после завершения возведения всех фундаментных конструкций, включая работы по гидроизоляции, устройству прифундаментного дренажа и устройства вводов инженерных коммуникаций. Обратная засыпка выполняется насыпными грунтами послойно, с последующим уплотнением до оптимального значения. В проект производства работ также необходимо внести указания по контролю качества уплотняемых грунтов с помощью плотномеров и геодезических приборов. 

Выводы:

Грамотное планирование работ, составление четких инструкций, определяющих порядок и последовательность операций, – залог успешного завершения строительства и в последующем эффективной эксплуатации объекта. Подрядная организация, ответственная за выполнение земляных работ, должна быть заинтересована в соблюдении и выполнении всех положений ППР на устройство котлована. Только в этом случае результаты ее деятельности будут приняты технадзором. 

 

Особенности ППР на выемку грунта и крепление стен котлована

ППР на разработку грунта экскаватором, составляется с учетом специфики данного вида работ. На начальном этапе выполнения проекта, необходимо изучить исходные данные и определиться с тем, какими техническими характеристиками должна обладать землеройная техника. Существует несколько факторов, способных повлиять на решение по принятию модели техники и вида навесного оборудования.

проект производства работ (ППР) на устройство грунтовой выемкиК ним относятся: технико-экономические показатели, объемы выкапываемого грунта, инженерно-геологические условия, условия стесненности, геометрические параметры котлована. На следующем этапе разработки документа, выполняют схему движения техники, устанавливают зоны для хранения отвала грунта, уточняют стадии откопки котлована и т.д. Грунт, вынимаемый в стесненных условиях, в отвал не складируется, его непрерывно загружают в автосамосвалы и вывозят с объекта на полигоны утилизации.

 

ППР на разработку котлована экскаватором

Необходимость в создании ППР на устройство котлована обозначена высоким уровнем значимости данного вида работ для будущего строительства. Данный проект способствует снижению всевозможных рисков. При соблюдении требований ППР, можно в разы повысить качество производимых работ, что в свою положительно повлияет на эксплуатационные характеристики возводимой конструкции. Немаловажным требованием к составлению документа является соблюдение норм по технике безопасности и контролю качества. В документе должны быть раскрыты вопросы, касающиеся выполнения технологических мероприятий, охраны труда, последовательности и сроков производства работ, размещения техники в пространстве и времени. Все технологические решения принимают с учетом технических характеристик используемых машин и оборудования. Любое отклонение от регламента составленного проекта является нарушением норм и правил строительных работ. Внесение в документ изменений подрядной организацией или заказчиком без участия разработчиков ППР чревато негативными последствиями. 

Разработка проекта должна учитывать многие факторы, влияющие на качество выполняемых работ. Помимо точного соответствия нормативам, документ составляется с учетом:

  • глубины заложения фундаментов;
  • типов грунтов и их физико-механических характеристик;
  • глубины промерзания грунта;
  • коэффициента уплотнения грунтов, используемых при обратной засыпки;
  • уровня грунтовых вод 

Наши проекты

Отзывы наших клиентов

ПОЛУЧИТЕ
КОММЕРЧЕСКОЕ
ПРЕДЛОЖЕНИЕ

ГАРАНТИРУЕМ
100% СОГЛАСОВАНИЕ

СРОК ИЗГОТОВЛЕНИЯ
ОТ 2-х ДНЕЙ

ПРЕДЛАГАЕМ
ИНДИВИДУАЛЬНЫЙ ПОДХОД

  • Вам нужны качественные услуги, для получения согласования со 100% гарантией?
  • Требуется выполнить пояснительные записки и чертежи не только для проверок, но и для использования на объекте?
  • Необходимо сориентироваться по стоимости разработки строительной документации?

Ответьте на несколько вопросов по вашему проекту и получите коммерческое предложение, оптимизированное под ваш случай!

Также наша компания занимается созданием технологических карт (ТК) на погрузо-разгрузочные работы