ППР на работы по демонтажу козлового крана входит в линейку проектов по демонтажу кранов
Разработка ППР на демонтаж козлового крана от ППР48 в Новосибирске
От 3х дней. От 35 тысяч рублей. Бесплатное устранение замечаний. 100% гарантия согласования.
Компания ППР 48 специализируется на разработке проектов производства работ (ППР) по демонтажу козловых кранов любой конфигурации для объектов различного назначения, включая особо опасные и уникальные предприятия.
Специфика разработки ППР на демонтажа козлового крана

Весь процесс подготовки ППР требует участия только квалифицированных специалистов, обладающих опытом работы с подобной документацией на промышленных площадках. Демонтажная операция на действующем объекте сопряжена с рядом сложностей: стеснённые условия, высокие риски и необходимость точного подбора грузоподъемной техники. Особое внимание уделяется описанию рабочих и опасных зон, ограничениям по углам работы оборудования, маршрутам перемещения техники и обеспечению безопасных условий для монтажников и стропальщиков.
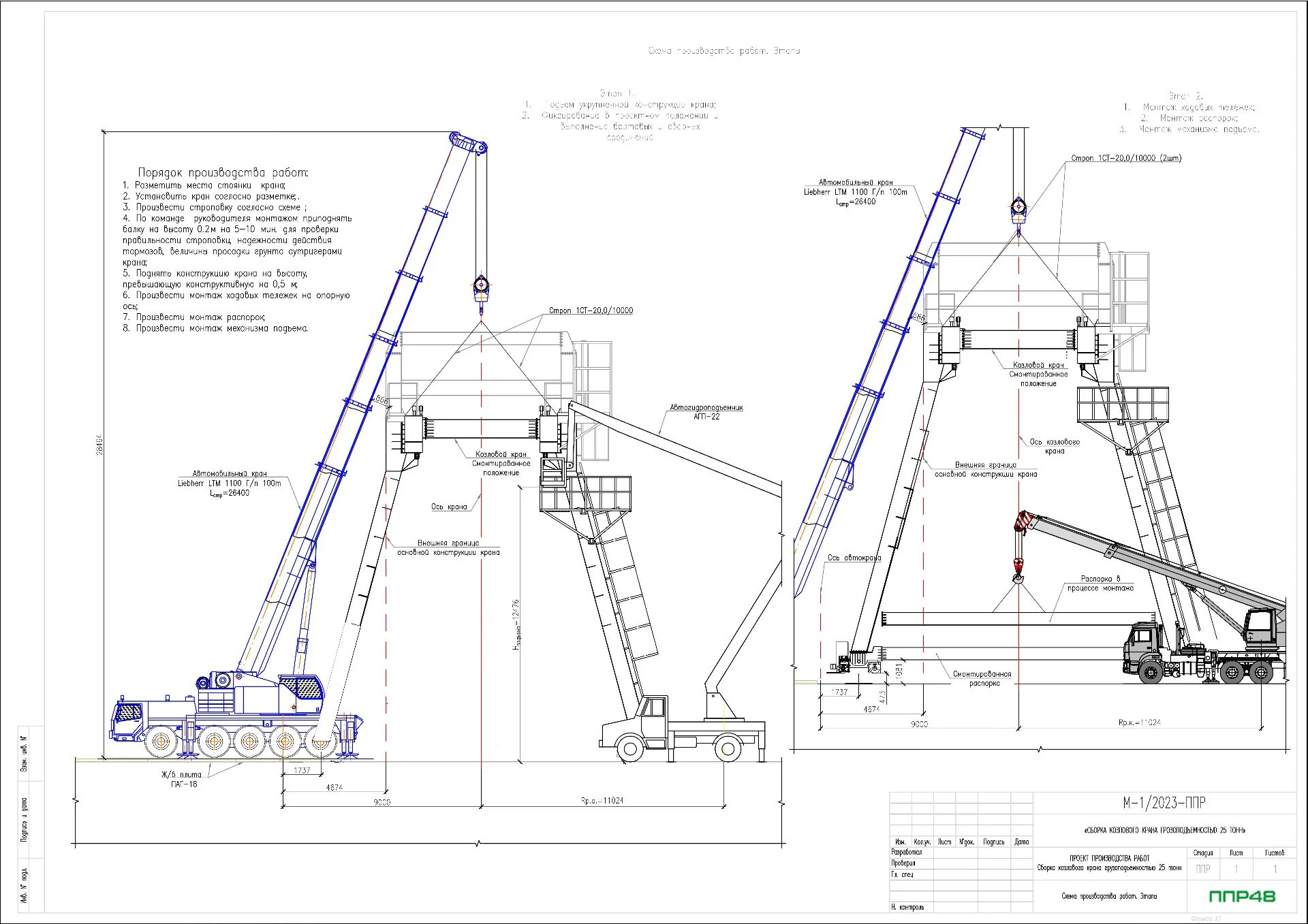
Графическая часть должна содержать планы и разрезы с расположением техники, схемы строповки, узлы анкерных линий, а также подробные тех- и организационно-технологические схемы. Для защиты сотрудников применяется специальная система коллективной и индивидуальной защиты от падения с высоты.
Специалисты нашей компании учитывают все эти нюансы в процессе проектирования, что позволяет сделать документ максимально конкретным, точным и качественным.
Состав и содержание ППР на демонтаж козлового крана

В большинстве случаев компания ППР 48 предлагает нашим заказчикам следующий состав документа организационно-технологического назначения:
Пояснительная записка:
- Общие сведения
- Мероприятия на подготовительном этапе
- Описание демонтируемого козлового крана
- Организационные решения
- Пошаговая технология демонтажных операций
- Характеристики выбранной грузоподъемной техники
- Материально-техническое обеспечение
- Комплекс мер по охране труда
- Применяемые техники безопасности при работе с краном и грузами
Графические схемы и чертежи:
- Ситуационный план (размещение объекта на территории)
- Схемы, иллюстрирующие ход и этапы демонтажа
- Визуализация работ с применением одной или нескольких единиц техники
Преимущества выполнения ППР на демонтаж козлового крана в ППР48
Наша компания обладает рядом преимуществ по сравнению с конкурентами и может предложить нашим заказчикам работы на взаимовыгодных партнерских условиях:
- Индивидуальный подход к каждому проекту;
- 100% согласование документации на всех стадиях;
- Оперативные сроки подготовки — от двух дней;
- Консультация по стоимости и наполнению ППР;
- Персональный менеджер вашего проекта
Для расчёта стоимости или консультации по разработке проектной документации достаточно ответить на несколько уточняющих вопросов.
Этапы выполнения проекта производства работ по демонтажу козлового крана
Работа по разработке ППР строится следующим образом: после сбора всех необходимых исходных данных проводится их всесторонний анализ, составляется техническое задание и обсуждается его структура и содержание с заказчиком. После этого начинается непосредственная разработка проекта с акцентом на графическую и содержательную части, особое внимание уделяется мероприятиям по безопасности. Готовый проект направляется на согласование клиенту — по статистике, большая часть документации утверждается с первого раза, в случае замечаний выполняется бесплатная доработка.
Для подготовки грамотного ППР необходимо собрать определенный перечень исходных данных: рабочие и исполнительные схемы, чертежи, планы и разрезы строения с указанием зон установки крана, чертежи металлоконструкций, схему рельсовых путей, технический паспорт оборудования, а также генеральный план предприятия с точным расположением демонтируемого крана. Также в процессе подготовки ППР нашим специалистам могут потребоваться внутренние регламенты предприятия, информация о его дорожной инфраструктуре и зон прокладки внешних инженерных сетей.




































