Компания ППР48 изготовила ТК на комплекс работ по монтажу металлических конструкций
Наша компания регулярно сталкивается с необходимостью разработки технологических карт. В данном примере вы можете видеть реализованный проект технологической карты на объекте “Крытый спортивный комплекс с трибунами для зрителей” в г. Санкт-Петербург.
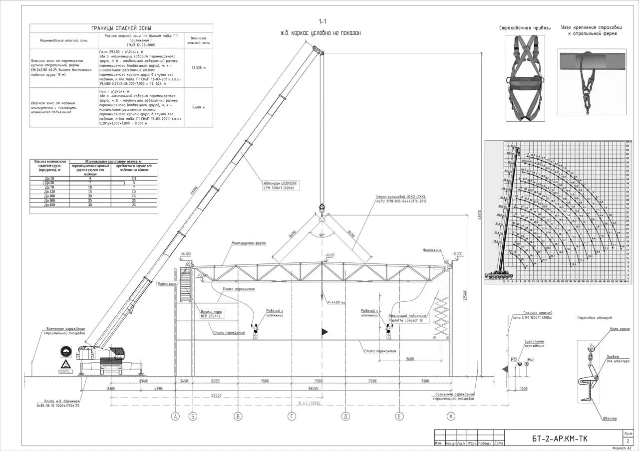
Данная ТК предназначена для использования при производстве работ по монтаже металлических конструкций. В ней приведены указания по технике безопасности и контролю качества работ. Приведена потребность в механизмах с целью ускорения производства работ, снижению затрат труда и совершенствованию организации и повышению качества работ.
Технологическая карта разработана в соответствии с действующими нормативными документами:
- СП 48.13330.11 Организация строительства;
- СНИП 12-03-2001 Безопасность труда в строительстве. часть 1. Общие требования;
- СНИП 12-04-2002 Безопасность труда в строительстве. часть 2. Строительное производство;
- Приказом Министерства труда и социальной защиты РФ от 1 июня 2015 г. N 336н "Об утверждении Правил по охране труда в строительстве"; СП 12-136-2002 Решения по охране труда и промышленной безопасности в проектах; организации строительства и проектах производства работ;
- МДС 12-29.2006 Методические рекомендации по разработке и оформлению технологической карты;
- СП 16.13330.2017 Стальные конструкции.
Графическая часть включает в себя технологическую схему производства работ по монтажу КМ в которой описаны мероприятия по технике безопасности во время работы крана, способы строповки, границы опасной зоны.
Подробнее о разработке ТК вы можете ознакомиться тут. Если вам необходима разработка Технологических Карт, наша компания всегда готова взять на себя разработку данной документации. Оставьте заявку и наш специалист свяжется с вами для уточнения деталей.













